Overview

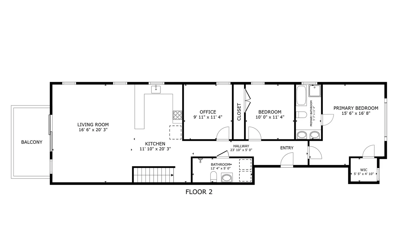
418 Ogden Ave, Unit 1, Jersey City, NJ 07307 is a beautifully designed contemporary condominium offering spacious living, modern finishes, and private outdoor amenities. With 1,950 square feet of thoughtfully planned interiors, this 3-bedroom, 3-bathroom residence delivers comfort, functionality, and refined urban living in one of Jersey City’s desirable neighborhoods.

  • Project Type : Completed Projects

Project in Details

This elegant condo features an open and airy layout with a well-appointed living and dining area on Level 1, enhanced by hardwood flooring and abundant natural light. The modern kitchen is equipped with gas range, dishwasher, microwave, refrigerator, and washer/dryer, ensuring both convenience and efficiency for everyday living.

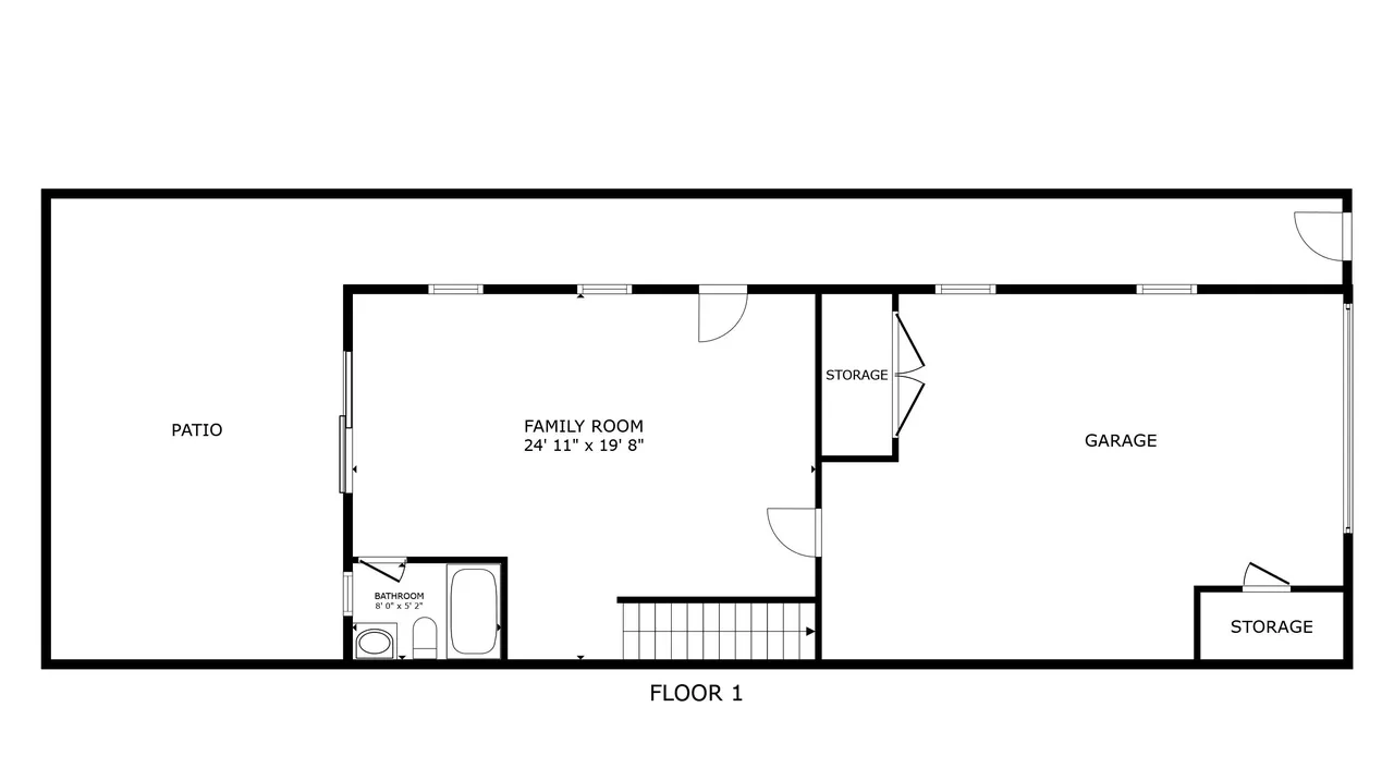
The home offers three generously sized bedrooms, all located on the main level, along with two full bathrooms, while an additional full bathroom on the basement level adds flexibility for guests or extended living space. Central air conditioning, gas heating, and hot air systems provide year-round comfort.

Outdoor living is elevated with a private terrace and backyard, ideal for relaxation or entertaining. The property also includes one-car parking, pet-friendly policies, and durable brick and aluminum/vinyl construction in a contemporary townhouse-style design. Combining modern aesthetics, generous space, and private amenities, this residence is perfectly suited for homeowners seeking luxury, privacy, and city convenience.

What Our Clients Say About Design

Our clients’ satisfaction is the true measure of our success. Their words reflect the trust they place in us, the quality of our craftsmanship, and the seamless experience we deliver from concept to completion. Each testimonial stands as a genuine reflection of our commitment to excellence, transparency, and creating spaces that truly feel like home.

"Their professionalism, transparency, and attention to detail made the entire experience smooth and stress-free. We are proud to be associated with such a well-executed development.”

- Satisfied client