Overview

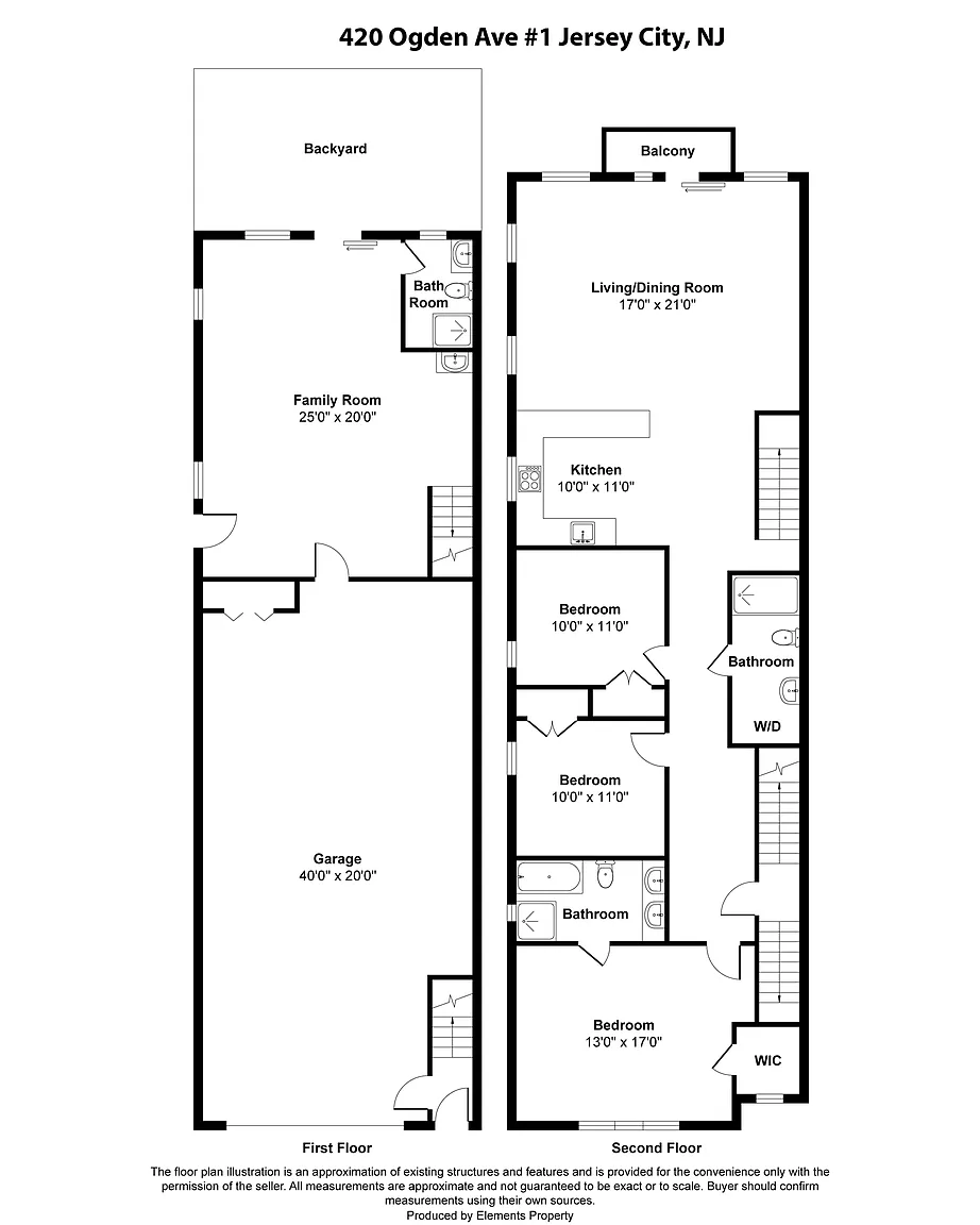
420 Ogden Ave #1, Jersey City, NJ 07307 is a striking 2,000 sq. ft. luxury duplex condominium offering panoramic New York City skyline views, expansive interiors, and exceptional private outdoor spaces. Designed for modern urban living, this 3-bedroom, 3-bathroom residence combines sophisticated architecture, premium finishes, and thoughtful functionality in the heart of Jersey City’s vibrant Heights neighborhood.

  • Project Type : Completed Projects

Project in Details

This meticulously designed home features a seamless open-concept living, dining, and kitchen layout, ideal for entertaining and everyday comfort. A dramatic wall of oversized windows fills the space with natural light while framing breathtaking NYC views. With hardwood flooring throughout, over 10-foot ceilings, and an intelligently planned multi-level layout, the residence maximizes both space and elegance.

The gourmet kitchen is equipped with top-of-the-line Viking appliances, sleek modern cabinetry, quartz countertops, and generous prep areas. The second level hosts three spacious bedrooms, each bathed in natural light, along with three beautifully finished full bathrooms featuring contemporary fixtures, elegant tilework, and frameless glass showers for a spa-like experience.

Additional highlights include an in-unit full-size Samsung washer and dryer, a separate bar/kitchen area on the garden level, private backyard, balcony, and EV-ready garage parking. Located steps from Riverview–Fisk Park, local cafés, restaurants, farmers markets, and public transportation, this exceptional residence offers the perfect blend of luxury living, community charm, and seamless access to downtown Jersey City and New York City.

What Our Clients Say About Design

Our clients’ satisfaction is the true measure of our success. Their words reflect the trust they place in us, the quality of our craftsmanship, and the seamless experience we deliver from concept to completion. Each testimonial stands as a genuine reflection of our commitment to excellence, transparency, and creating spaces that truly feel like home.

"Their professionalism and commitment to excellence made the entire process smooth and stress-free. We are completely satisfied and proud to be associated with such a remarkable development.”

- Jhonson