Overview

892 Summit Avenue is a new ground-up multi-family residential development currently under construction in Jersey City. Designed to enhance urban density while maintaining architectural harmony with the surrounding neighborhood, this project reflects a balanced integration of contemporary design, structural efficiency, and strategic site planning.

  • Project Type : Ongoing Projects

Project in Details

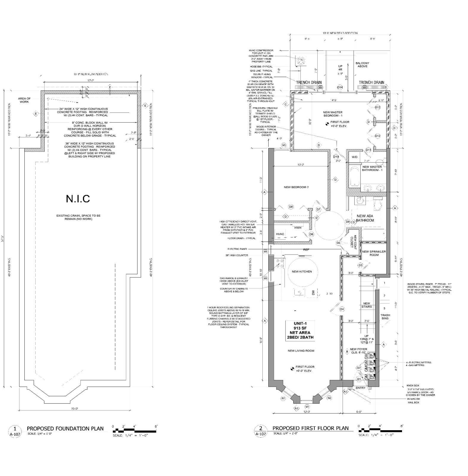
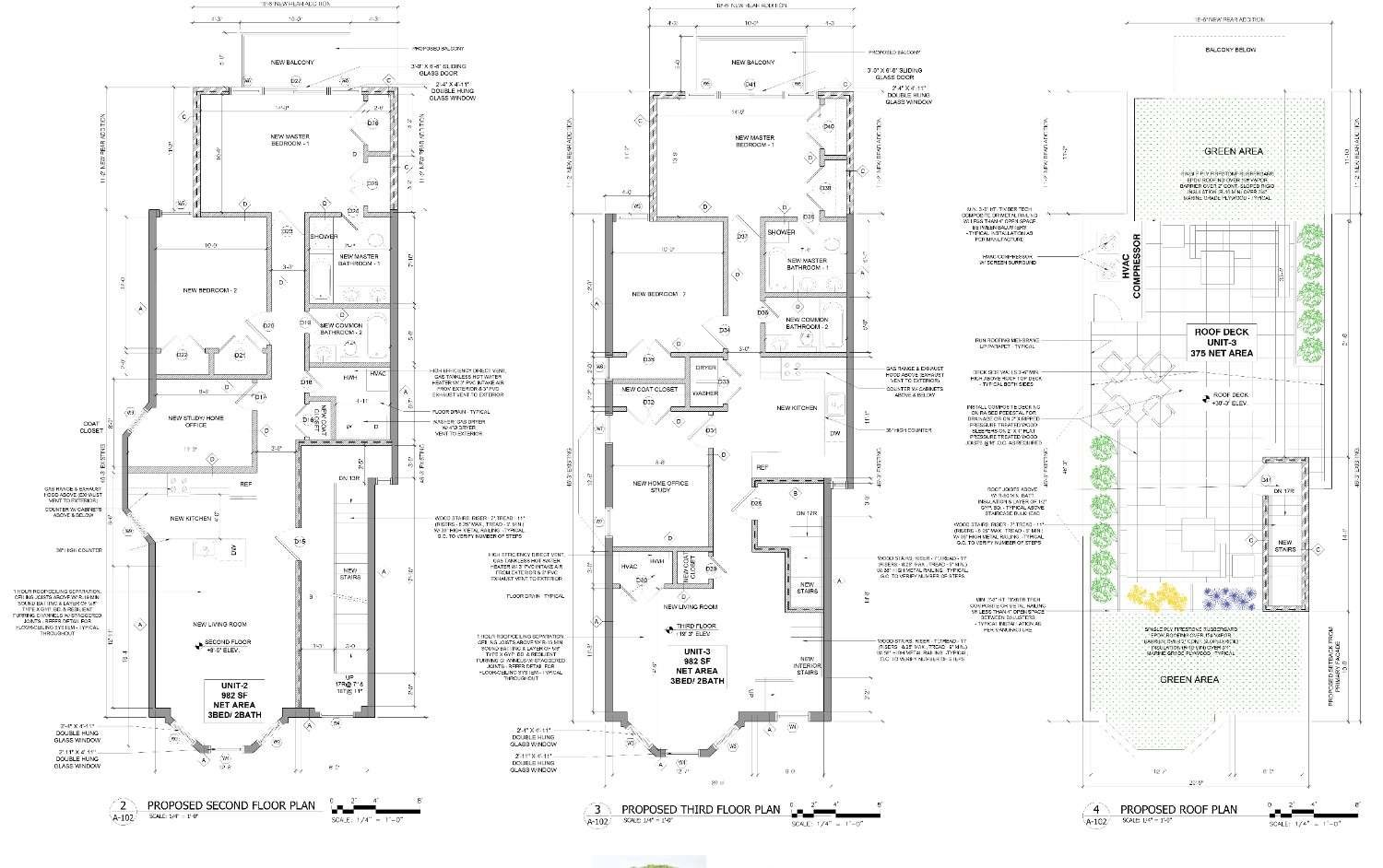
Situated on a compact urban lot, this development introduces a newly constructed three-story residential structure designed to maximize interior functionality and vertical living efficiency. The proposed design features a clean, modern exterior with horizontal siding accents, carefully aligned window placements, and a refined façade composition that enhances curb appeal while respecting adjacent building lines.

The layout is structured to optimize living space across all levels, providing open-concept interiors, improved natural light penetration, and efficient circulation throughout the building. Rear-facing balconies and thoughtfully positioned openings enhance both ventilation and outdoor connectivity, contributing to a modern urban living experience.

The project also incorporates upgraded exterior elements including new façade treatments, balcony railings, and refined architectural detailing. Structural components are engineered for long-term durability and full code compliance, ensuring safety, performance, and sustainability.

With a strong focus on architectural precision, zoning alignment, and modern residential standards, 892 Summit Avenue represents a well-executed infill development. Upon completion, it will deliver contemporary multi-family living with improved spatial efficiency, enhanced exterior aesthetics, and increased long-term property value in a prime Jersey City location.