Project in Details
The architectural design of 213 Pacific showcases a striking façade combining warm brick, sleek panel finishes, and expansive glass windows. Clean lines, private balconies, and structured geometric detailing create a refined yet modern presence along the streetscape. The ground level is designed to support active commercial or retail spaces, enhancing pedestrian interaction and neighborhood vitality.
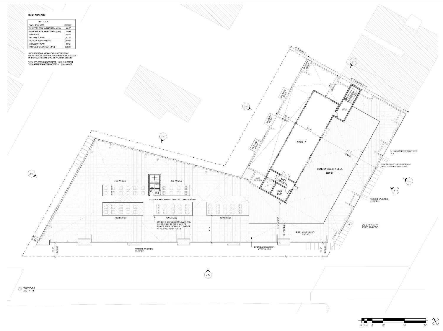
Above, multiple residential floors are planned to feature spacious units with open-concept layouts, floor-to-ceiling windows, and private outdoor balconies. The rooftop plan includes a dedicated amenity deck designed to offer residents a shared outdoor experience, ideal for relaxation and social gatherings. Careful attention has been given to circulation, mechanical integration, and structural efficiency to ensure long-term durability and operational excellence.
With its blend of contemporary design, urban functionality, and amenity-focused planning, 213 Pacific is positioned to become a signature residential and mixed-use development. Once completed, it will stand as a testament to innovative architecture, smart city living, and our continued commitment to building future-ready communities.

