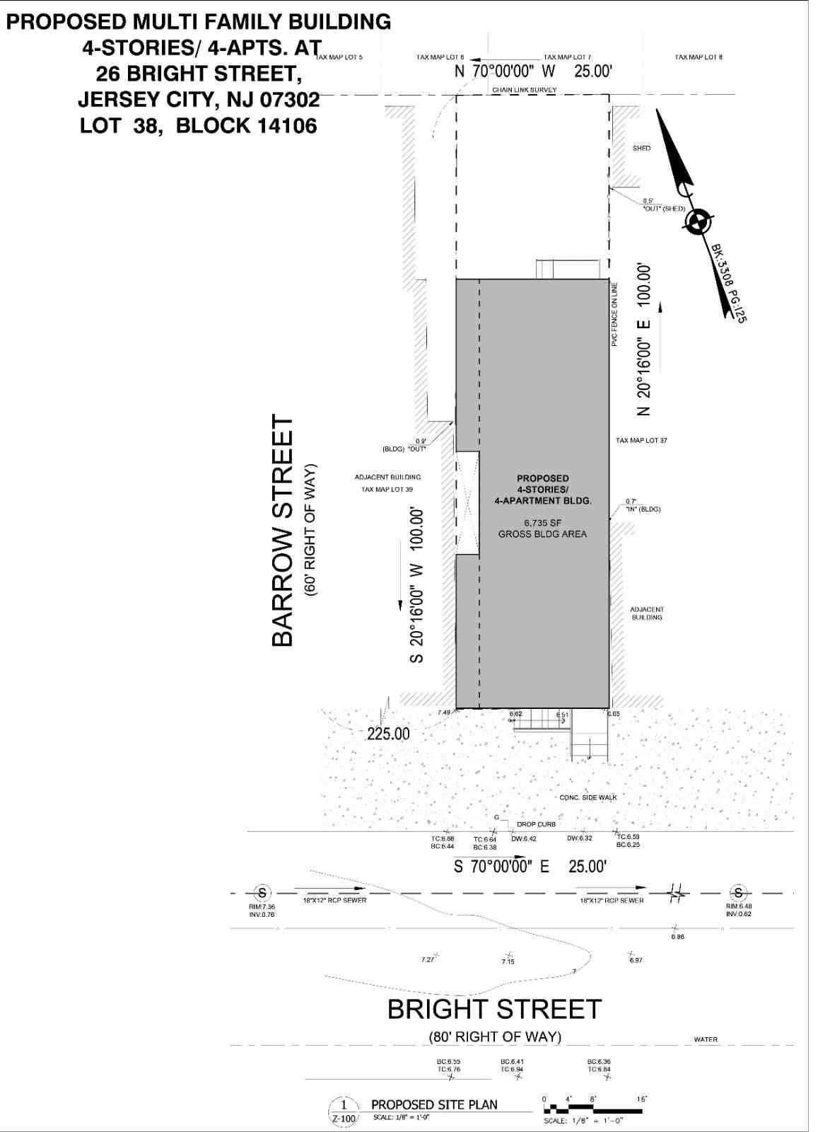
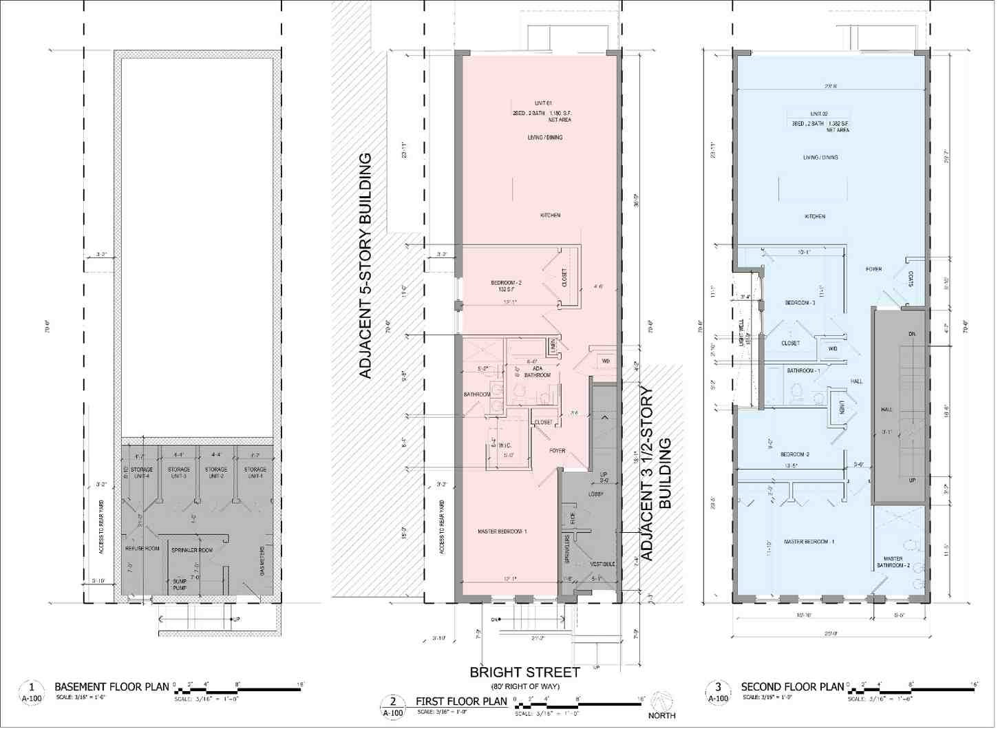
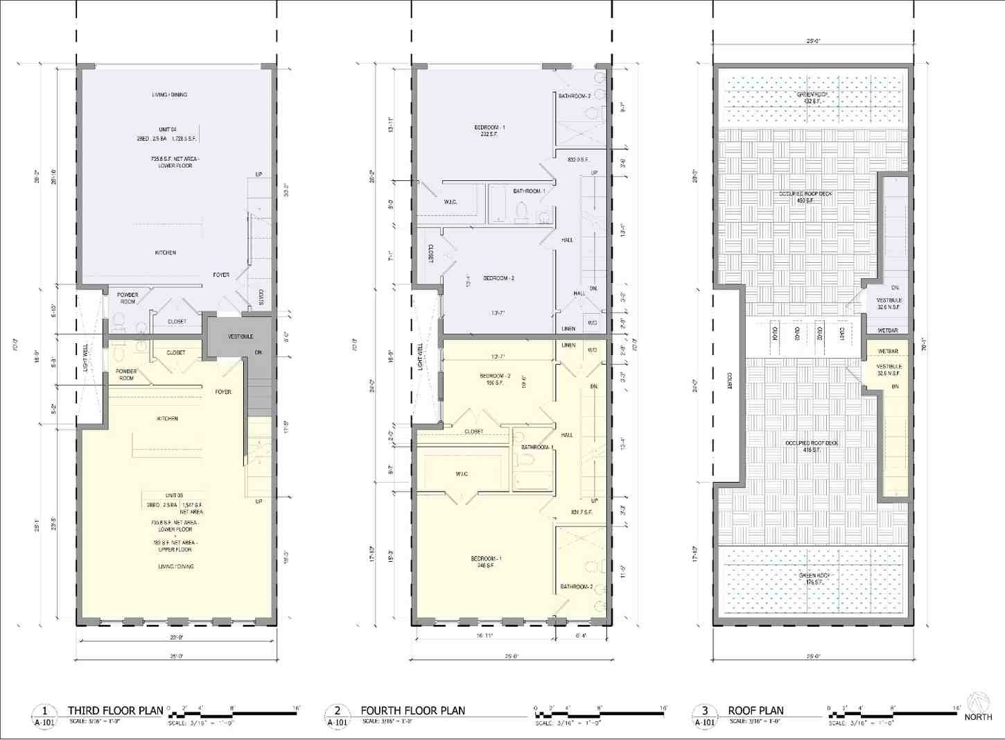
Overview

26 Bright Street is a contemporary urban infill development currently under construction, designed to seamlessly integrate modern living within a classic city streetscape. This multi-story residential project combines traditional brick façade elements with a sleek, glass-forward rear elevation—offering both architectural character and modern functionality.

  • Project Type : Ongoing Projects

Project in Details

The front elevation preserves a timeless urban aesthetic, featuring a structured brick façade with vertically aligned windows that complement the surrounding neighborhood. Clean detailing, balanced proportions, and refined materials ensure the building enhances the streetscape while maintaining a strong architectural identity.

The rear elevation transitions into a modern glass-dominant design, maximizing natural light and interior openness. Expansive windows and contemporary structural elements are thoughtfully incorporated to create bright, airy living spaces. The layout is planned to optimize circulation, privacy, and energy efficiency, reflecting smart urban residential design.

Once completed, 26 Bright Street will stand as a refined example of modern city living—blending heritage-inspired exterior design with contemporary interiors, durable construction, and long-term value. This project continues our commitment to delivering thoughtfully designed, future-ready residential developments.