Project in Details
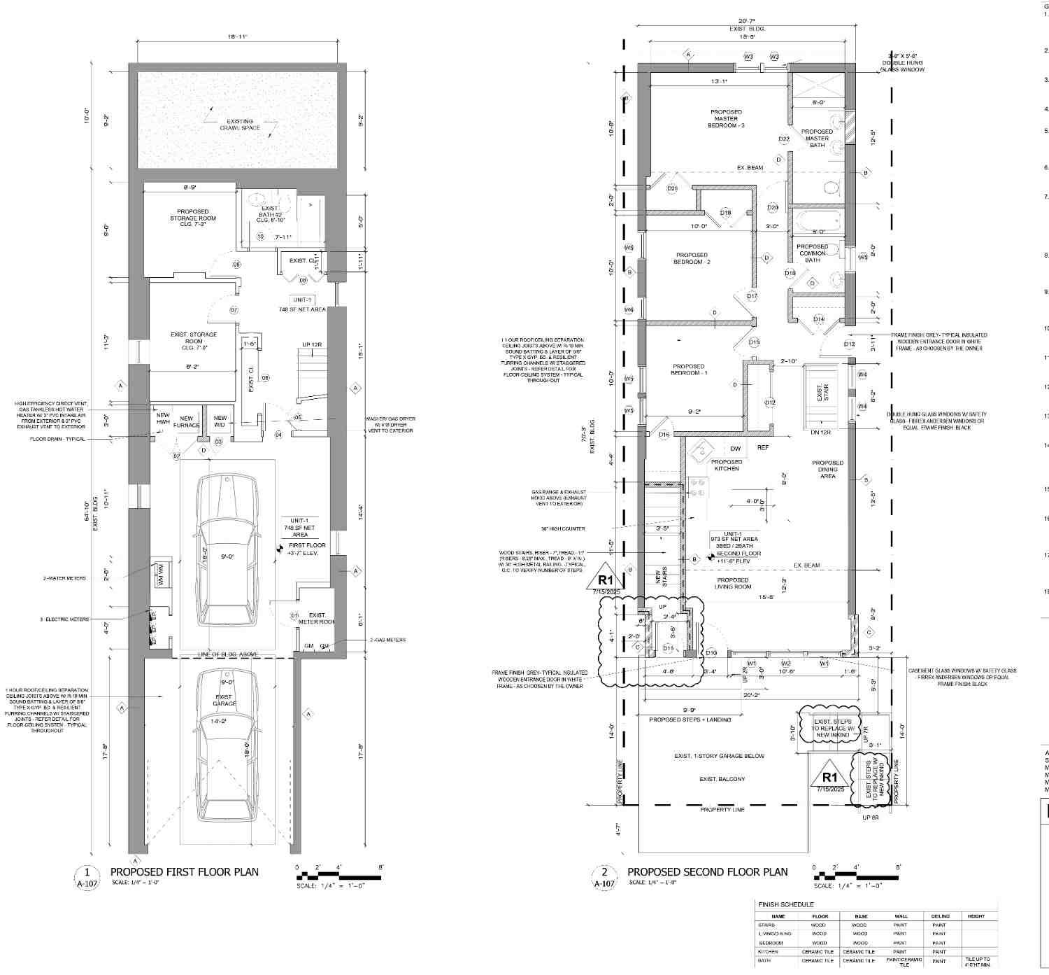
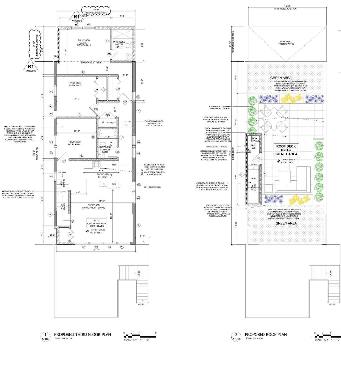
This development involves the renovation of a three-story frame dwelling, including the addition of a new upper-level expansion to increase living space and overall property value. The updated front elevation introduces a refreshed façade featuring modern siding finishes, upgraded windows, enhanced lighting fixtures, and a redesigned entry with contemporary detailing.
The interior reconfiguration is focused on optimizing layout efficiency, improving circulation, and enhancing natural light. Structural reinforcements and code-compliant upgrades ensure safety, durability, and long-term performance. The project also includes site improvements such as updated fencing, improved steps and landings, new concrete sidewalks, and enhanced backyard landscaping.
Upon completion, the Columbia Project will deliver a fully modernized two-family home that blends updated design, expanded living space, and improved exterior aesthetics—representing a seamless combination of renovation expertise and forward-thinking residential development.

