Project in Details
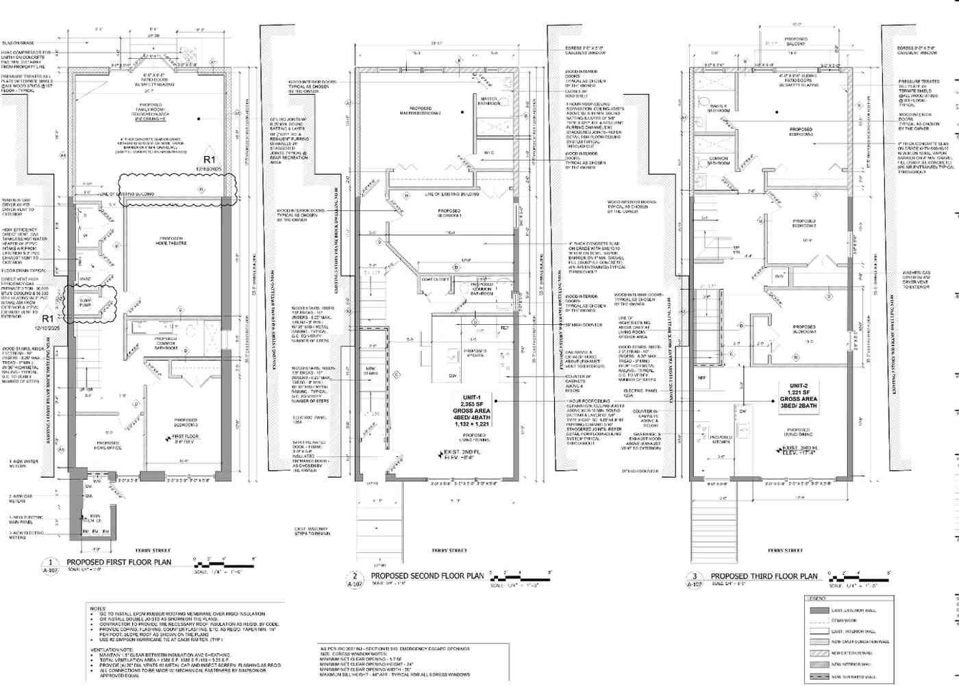
Situated on a 25’ x 98’ lot, this development replaces and expands upon the existing structure with a fully reimagined three-story two-family residence. The proposed design introduces a clean, modern façade featuring a combination of brick and contemporary siding finishes, balanced window placements, and a streamlined vertical profile that enhances curb appeal while respecting the surrounding neighborhood context.
The layout is designed to optimize interior living space across all three levels, offering improved circulation, enhanced natural light, and efficient floor planning. The project also includes a vertical addition and site improvements such as upgraded fencing, improved drainage connections, new driveway paving, sidewalk enhancements, and updated utility integration including water, sewer, and gas connections.
With a strong focus on structural integrity, code compliance, and long-term durability, 86 Ferry Street represents a thoughtfully executed residential infill project. Upon completion, it will deliver modern two-family living with improved exterior aesthetics, expanded interior capacity, and enhanced overall property value in a prime Jersey City location.

